Автогрейдер Liugong оснащен Shandong Lutong Ведущий мост грейдера мощностью 180 лошадиных сил, и его стабильное качество признано мировым рынком.
Аннотация:
ведущий мост грейдера мощностью 180 лошадиных сил производства Shandong Lutong Heavy Industries Machinery Co., Ltd., являющийся высокопроизводительным Ведущий мост строительной техники, обеспечивает отличную устойчивость и надежность грейдеров Liugong и завоевал высокую оценку клиентов по всему миру.
Стратегическое сотрудничество: Автогрейдер Liugong оснащен Приводной мост грейдера Shandong Lutong мощностью 180 лошадиных сил для обеспечения работы по всему миру.
В условиях высокой конкуренции на мировом рынке строительной техники стратегическое сотрудничество между производителями основных компонентов и машиностроительными компаниями является ключом к определению конкурентоспособности на рынке.Компания Shandong Lutong Heavy Industry Machineries Co., Ltd. (далее именуемая “Shandong Lutong”)бы как известный поставщик Ведущий мост строительной техники, установила тесные отношения сотрудничества с Liugong, ведущим брендом строительной техники в Китае.Важной вехой в этом сотрудничестве является то, что наш 180-сильный ведущий мост грейдера широко используется во флагманских автогрейдерах Liugong серии 180. Это сотрудничество не только демонстрирует признание Liugong нашей технической мощи и приверженности качеству, но и подтверждает отличные эксплуатационные характеристики нашего Задний мост грейдера мощностью 180 л.с. в различных тяжелых условиях эксплуатации условия по всему миру.
Вот уже более 30 лет компания Shandong Lutong занимается исследованиями и разработками, производством и продажей Приводной мост строительной техники , ведущих мостов сельскохозяйственной техники и ведущих мостов горного оборудования, а также накопила большой отраслевой опыт и технические знания.Наш ведущий мост грейдера мощностью 180 лошадиных сил полностью адаптирован к грейдеру Liugong,что точно соответствует его потребностям в различных ситуациях, таких как дорожное строительство, выравнивание почвы, обрезка склонов и добыча полезных ископаемых.Установка этого высокопроизводительного ведущего моста строительной техники значительно повысила стабильность работы, эффективность передачи мощности и долговечность автогрейдера Liugong, еще больше укрепила конкурентные преимущества автогрейдера Liugong на международном рынке, а также позволила заказчикам по всему миру постепенно оценить надежное качество ведущего моста автогрейдера Shandong Lutong.
Превосходное качество: основное преимущество ведущего моста грейдера Shandong Lutong мощностью 180 лошадиных сил
Причина, по которой грейдер Liugong, оснащенный Задний мост грейдера мощностью 180 л.с., получил признание на мировом рынке, заключается в нашем стремлении к высокому качеству и передовому инженерному дизайну.Каждый ведущий мост строительной техники, который покидает завод, строго соответствует национальным отраслевым стандартам и строгой внутренней системе контроля качества нашей компании и прошел ряд строгих проверок, чтобы гарантировать, что каждый продукт, поставляемый клиентам, соответствует высоким требованиям к качеству.
Высококачественный выбор материалов и точность изготовления создают прочную основу для обеспечения качества
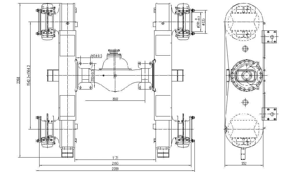
ведущий мост грейдера мощностью 180 лошадиных сил изготовлен из высокопрочных материалов, которые обладают отличной износостойкостью и ударопрочностью.Ключевые детали, такие как главный редуктор, дифференциал в сборе и полуось, изготавливаются с высокой точностью и подвергаются специальной термической обработке, такой как науглероживание и закалка, для эффективного повышения твердости и усталостной стойкости деталей.В то же время наша компания внедрила передовые обрабатывающие центры с ЧПУ для достижения точности обработки на микронном уровне, обеспечения точности зацепления зубчатых колес, минимизации потерь мощности и поддержания стабильной работы ведущего моста грейдера при длительной эксплуатации.
Наделен превосходной производительностью, стабильной и надежной работой
Учитывая суровые условия эксплуатации автогрейдера, Приводной мост грейдера был специально оптимизирован.На ведущем мосту установлена эффективная трансмиссионная система с общим передаточным отношением 17,874, которая обеспечивает эффективную передачу мощности и улучшает сцепление грейдера с дорогой.Встроенная противоскользящая блокировка дифференциала обладает высоким коэффициентом блокировки, который позволяет добиться максимального сцепления на мягких, неровных или скользких дорогах, обеспечивает надежную гарантию точной работы грейдера и в полной мере отражает технические преимущества ведущего моста нашей строительной техники.
Тщательные испытания и верификация для обеспечения долгосрочной стабильности
Перед началом массового производства каждый прототип ведущего моста грейдера мощностью 180 лошадиных сил должен пройти комплексные стендовые испытания, включающие 2000 часов непрерывной работы под нагрузкой, испытание на ударопрочность и циклические испытания при экстремальных температурах, чтобы убедиться в приспособляемости изделия к различным суровым условиям эксплуатации.В ходе проверки грейдера Liugong в полевых условиях ведущий мост нашей строительной техники продемонстрировал превосходную надежность при минимальных требованиях к техническому обслуживанию, а его стабильная работа была полностью подтверждена.
Сильная сторона компании: Shandong Lutong - ваш надежный партнер по производству Приводной мост строительной техники
Способность разрабатывать и производить ведущий мост грейдера мощностью 180 лошадиных сил, соответствующий мировым стандартам Liugong, является прямым проявлением всестороннего промышленного потенциала Shandong Lutong.За 33 года целенаправленной и глубокой работы в области ведущих мостов мы стали ведущим мировым поставщиком ведущих мостов для строительной техники. Мы обладаем обширным опытом обслуживания ведущих OEM-заказчиков, таких как Liugong, и обладаем всесторонними знаниями во всех аспектах качества, производства, продаж и технического обслуживания. доставка.
Ведущие исследования и разработки и инновации, обладающие высокой технической мощью
У нас работают несколько старших инженеров, и мы совместно с Liugong разработали ведущий мост грейдера 180ZH. Мы обладаем рядом патентов и инвестируем значительную часть нашего годового дохода в исследования и разработки, что способствует совершенствованию технологии изготовления ведущих мостов строительной техники.
Крупномасштабное производство, стабильные поставки
Современная производственная база занимает площадь в 150 000 квадратных метров, с годовой производственной мощностью 50 000 ведущих мостов строительной техники, достаточной производительностью ведущих мостов грейдеров 180ZH и совершенной цепочкой поставок, обеспечивающей своевременную поставку.
Весь процесс контроля качества проходит в соответствии с основными принципами обеспечения качества
Качество является основой конкурентоспособности Shandong Lutong. Мы внедрили систему управления качеством в полном объеме, которая прошла сертификацию ISO9001.Начиная с проверки сырья (с использованием спектрального анализа, ультразвукового контроля и т.д.), обработки деталей, сборки готовых изделий и заканчивая окончательными эксплуатационными испытаниями (включая шум, температуру, герметичность и многие другие показатели), каждое звено строго проверяется профессиональной командой контроля качества.Мы оснащены профессиональным испытательным оборудованием, в том числе стендом для испытания на вертикальную нагрузку с двойной прижимной головкой (максимальное усилие нагрузки с одной прижимной головкой составляет 150 т), который позволяет точно определить работу подшипников ведущего моста, и стендом для испытания на усталость при кручении в двух направлениях (максимальный момент нагрузки с одной стороны составляет 150000 Н-м) позволяет полностью проверить усталостную прочность ведущего моста и обеспечить надежную поддержку качества продукции.Проводите 100%-ную проверку ключевых компонентов основной продукции, таких как ведущие мосты грейдеров 180ZH, и соблюдайте стандарт поставки “без дефектов”, чтобы гарантировать стабильную и надежную работу каждого ведущего моста строительной техники.
Глобальная схема продаж, гарантия безупречного обслуживания
Обеспечьте пользователям ведущих мостов грейдеров Liugong полный спектр послепродажного обслуживания с гарантией качества и круглосуточным реагированием.
Гарантия эффективной доставки для содействия глобальному сотрудничеству
Сотрудничайте с международными логистическими компаниями, чтобы открыть логистические маршруты в крупных портах по всему миру, оптимизировать расписание, обеспечить механизмы приоритета заказов и отслеживания логистики, а также обеспечить своевременную доставку товаров.
Перспективы на будущее: Углубление сотрудничества и беспроигрышный выход на мировой рынок
Благодаря 180-сильному ведущему мосту грейдера в качестве связующего звена стратегическое сотрудничество между Shandong Lutong и Liugong стало образцом для всей отрасли.Поскольку глобальные инвестиции в инфраструктуру продолжают расти, спрос на рынке на высокопроизводительные грейдеры с высокой устойчивостью и ведущие мосты вспомогательной строительной техники будет продолжать расти.Shandong Lutong продолжит расширять сферу производства ведущих мостов, увеличивать инвестиции в технологические исследования и разработки, изучать применение легких материалов, интеллектуальных систем смазки и экологически чистых конструкций, а также продолжать повышать эффективность и экологичность ведущих мостов грейдеров мощностью 180 лошадиных сил и различных ведущих мостов строительной техники.
Для нас большая честь, что ведущий мост грейдера мощностью 180 лошадиных сил может помочь Liugong grader, и мы также рады, что качество и надежность нашей компании были признаны B2B-покупателями по всему миру.Для мировых строительных компаний, подрядчиков и покупателей оборудования компания Shandong Lutong является надежным поставщиком ведущих мостов строительной техники. Мы используем многолетний опыт работы в отрасли, передовые технические решения, строгий контроль качества и совершенную систему обслуживания, чтобы предоставлять клиентам высококачественные ведущие мосты для грейдеров и всестороннюю поддержку в сотрудничестве.
Клиенты со всего мира могут связаться с компанией Shandong Lutong, чтобы узнать о нашем высокопроизводительном ведущем мосте грейдера мощностью 180 лошадиных сил и полном ассортименте продукции для ведущих мостов строительной техники, а также совместно поработать над оснащением вашего оборудования и способствовать развитию мировой индустрии строительной техники.









